- Home
- Aanbod
- Woning aanbod
- Concourslaan 15
Concourslaan 15 BUITENPOST
vraagprijs
€ 295.000 k.k.
Plan bezichtigingOmschrijving
Wat een mooie kans voor de starter, deze hoekwoning met als extra een in 2003 aangebouwde garage, bijkeuken en hobbyruimte. Gelegen in een ruim opgezette en kindvriendelijke woonomgeving met veel groen speelmogelijkheden.
Met alleen bestemmingsverkeer met de komen en gaande buren is het een rustige en heerlijke plek om te wonen.
Verkopers hebben er eindeloos lang gewoond en met veel woonplezier. Nu werd het tijd voor een nieuwe stap en mag deze mooie plek van jou zijn. Buitenpost ligt centraal in het Noorden en heeft een eigen station aan de spoorlijn Leeuwarden - Groningen.
De indeling is als volgt:
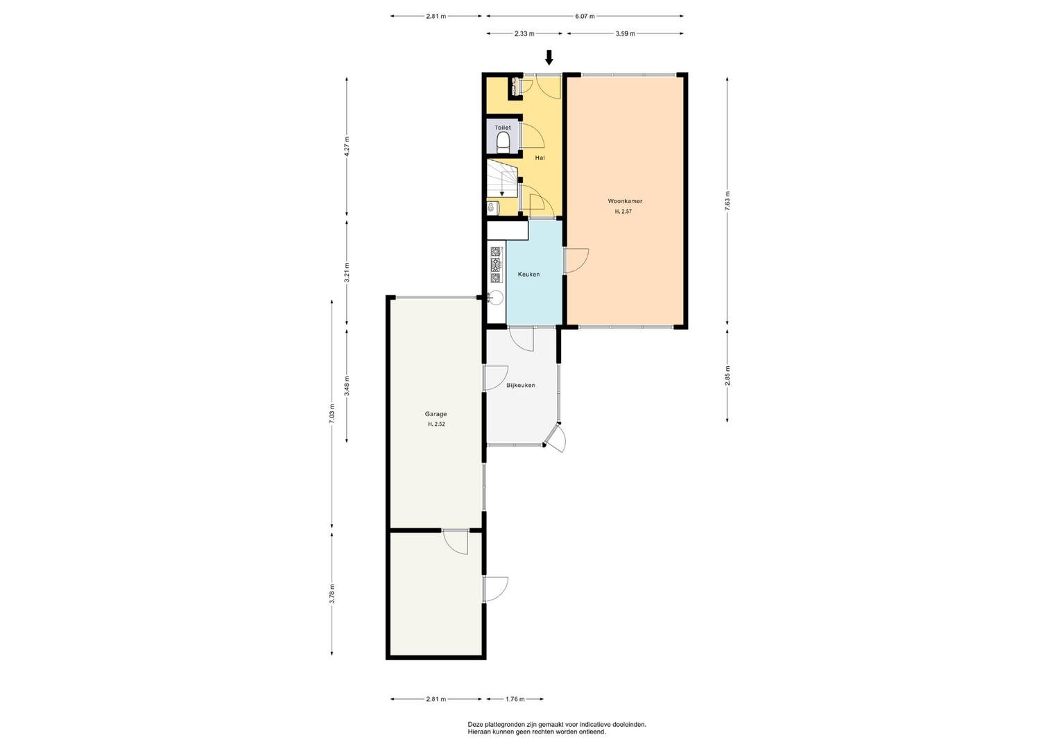
Entree, ruime hal, trapopgang en garderobe nis. Recent vernieuwd toilet met fontein. Gesloten keuken met een eenvoudige maar nette keuken unit met inbouwapparatuur. Woonkamer met veel licht, een mooi zicht op de straat en op eigen besloten tuin achter.
In 2003 is de woning uitgebreid met een ruime, aangebouwde geïsoleerde bijkeuken met een deur naar de tuin, Via de bijkeuken kom je in de lange garage, met een loopdeur, roldeur, betonvloer, en voorzien van elektriciteit. Achter de garage is nog een extra berging achter en aangebouwd. Het maakt het geheel ook geschikt voor hobby, of met een aanpassing als werkkamer voor thuis.
Op de verdieping vind je een ruime overloop met drie slaapkamers rondom. De badkamer is met een tweede toilet, inloopdouche, en wastafelmeubel. Er is een vaste trap naar zolder!
Op de tweede verdieping vind je nog veel extra ruimte in de vorm van een overloop en een vierde slaapkamer.
De tuin achter, is besloten, en met een achterom over eigen erf. De tuin is met veel bestrating en bloeiende borders, wat het tot een heerlijke buiten plek maakt.
Belangrijke details:
Grote aanbouw, gerealiseerd in 2003
Drowa kruipruimte isolatie onder de vloer
Muurisolatie 2019 met isolatieparels
Kunststof kozijnen entree en op de verdieping met HR ++ glas
Voorzieningen:
Buitenpost kenmerkt zich door de vele voorzieningen met o.a. een winkelcentrum rond de Kerkstraat, zijn er meerdere supermarkten, een sportaccommodatie, een zwembad, verschillende kerken en verder is er alles op het gebied van basis- en voortgezet onderwijs.
Bereikbaarheid:
Buitenpost ligt mooi centraal in het Noorden en is de hoofdplaats van de Gemeente Achtkarspelen. Het gemeentehuis is hier gevestigd direct aan het stationsgebied. Hier kom en ga je met de bus of juist met de trein. Buitenpost ligt direct aan het spoor tussen Leeuwarden en Groningen. Met een treinreis ben je in beide steden in ca 20 minuten, ideaal voor woon/werkverkeer.
Omgeving: Het omliggen platteland en de weidsheid daarvan kenmerken de omgeving van het dorp, en ook het unieke coulisselandschap van de Friese Wouden. In het dorp vind je de botanische tuin en ook het Ijstijdenmuseum, die je alles vertelt over het ontstaan van dit gebied.
Dus kom kijken, en neem gerust je eigen NVM aankoopmakelaar mee. Alle informatie kun je vinden op noorderlichtmakelaars.nl/aanbod/
Wil je eerst een preview van deze woning? Dat kan! Zowel op Funda als op onze eigen website staat naast gewone en 360º foto’s ook een Walk through video.
Tot slot:
Deze presentatie is met zorg samengesteld. Desondanks kunnen aan deze presentatie geen rechten worden ontleend en aanvaardt de makelaar of zijn opdrachtgever geen enkele aansprakelijkheid voor enige onvolledigheid of onjuistheid van de in deze presentatie verstrekte informatie. Mocht deze presentatie of andere verstrekte informatie vragen oproepen, dan nodigen wij je van harte uit deze onder onze aandacht te brengen.
Met alleen bestemmingsverkeer met de komen en gaande buren is het een rustige en heerlijke plek om te wonen.
Verkopers hebben er eindeloos lang gewoond en met veel woonplezier. Nu werd het tijd voor een nieuwe stap en mag deze mooie plek van jou zijn. Buitenpost ligt centraal in het Noorden en heeft een eigen station aan de spoorlijn Leeuwarden - Groningen.
De indeling is als volgt:
Entree, ruime hal, trapopgang en garderobe nis. Recent vernieuwd toilet met fontein. Gesloten keuken met een eenvoudige maar nette keuken unit met inbouwapparatuur. Woonkamer met veel licht, een mooi zicht op de straat en op eigen besloten tuin achter.
In 2003 is de woning uitgebreid met een ruime, aangebouwde geïsoleerde bijkeuken met een deur naar de tuin, Via de bijkeuken kom je in de lange garage, met een loopdeur, roldeur, betonvloer, en voorzien van elektriciteit. Achter de garage is nog een extra berging achter en aangebouwd. Het maakt het geheel ook geschikt voor hobby, of met een aanpassing als werkkamer voor thuis.
Op de verdieping vind je een ruime overloop met drie slaapkamers rondom. De badkamer is met een tweede toilet, inloopdouche, en wastafelmeubel. Er is een vaste trap naar zolder!
Op de tweede verdieping vind je nog veel extra ruimte in de vorm van een overloop en een vierde slaapkamer.
De tuin achter, is besloten, en met een achterom over eigen erf. De tuin is met veel bestrating en bloeiende borders, wat het tot een heerlijke buiten plek maakt.
Belangrijke details:
Grote aanbouw, gerealiseerd in 2003
Drowa kruipruimte isolatie onder de vloer
Muurisolatie 2019 met isolatieparels
Kunststof kozijnen entree en op de verdieping met HR ++ glas
Voorzieningen:
Buitenpost kenmerkt zich door de vele voorzieningen met o.a. een winkelcentrum rond de Kerkstraat, zijn er meerdere supermarkten, een sportaccommodatie, een zwembad, verschillende kerken en verder is er alles op het gebied van basis- en voortgezet onderwijs.
Bereikbaarheid:
Buitenpost ligt mooi centraal in het Noorden en is de hoofdplaats van de Gemeente Achtkarspelen. Het gemeentehuis is hier gevestigd direct aan het stationsgebied. Hier kom en ga je met de bus of juist met de trein. Buitenpost ligt direct aan het spoor tussen Leeuwarden en Groningen. Met een treinreis ben je in beide steden in ca 20 minuten, ideaal voor woon/werkverkeer.
Omgeving: Het omliggen platteland en de weidsheid daarvan kenmerken de omgeving van het dorp, en ook het unieke coulisselandschap van de Friese Wouden. In het dorp vind je de botanische tuin en ook het Ijstijdenmuseum, die je alles vertelt over het ontstaan van dit gebied.
Dus kom kijken, en neem gerust je eigen NVM aankoopmakelaar mee. Alle informatie kun je vinden op noorderlichtmakelaars.nl/aanbod/
Wil je eerst een preview van deze woning? Dat kan! Zowel op Funda als op onze eigen website staat naast gewone en 360º foto’s ook een Walk through video.
Tot slot:
Deze presentatie is met zorg samengesteld. Desondanks kunnen aan deze presentatie geen rechten worden ontleend en aanvaardt de makelaar of zijn opdrachtgever geen enkele aansprakelijkheid voor enige onvolledigheid of onjuistheid van de in deze presentatie verstrekte informatie. Mocht deze presentatie of andere verstrekte informatie vragen oproepen, dan nodigen wij je van harte uit deze onder onze aandacht te brengen.
Specificaties
Over dit object
Overdracht
| Status | verkocht |
|---|---|
| Prijs | € 295.000 k.k. |
Bouw
| Bouwjaar | 1973 |
|---|---|
| Bouwvorm | bestaande bouw |
| Type Object | Woonhuis |
| Hoofdfunctie | Woonruimte |
Indeling
| Woonoppervlakte | 122 m² |
|---|---|
| Perceeloppervlakte | 314 m² |
| Woning Inhoud | 493 m³ |
| Kamers | 6 (4 slaapkamers) |
Energie
| Energielabel | C |
|---|






















































































Refresh to make it work.
Refresh to make it work.











