- Home
- Aanbod
- Woning aanbod
- Middelbuorren 20 a
Middelbuorren 20 a OPEINDE
vraagprijs
€ 287.000 k.k.
Plan bezichtigingOmschrijving
Vrijstaand woonhuis met aangebouwde slaapkamer en badkamer beneden en een vrijstaande garage, met erf en tuin, gelegen aan de Middelbuorren in Opeinde. Dit kan een leuke starterswoning voor je zijn maar is ook geschikt voor iemand die beneden wil slapen.
De indeling is als volgt:
Begane grond: Entree, hal, trapopgang, L vormige woonkamer met ramen en licht rondom, Open keuken met een eenvoudige keukenunit. Deur naar de ruime slaapkamer met een doorloop naar de badkamer met douche en toilet.
Vanuit de keuken een deur naar de bijkeuken met hier de aansluitingen voor het witgoed en een deur naar buiten.
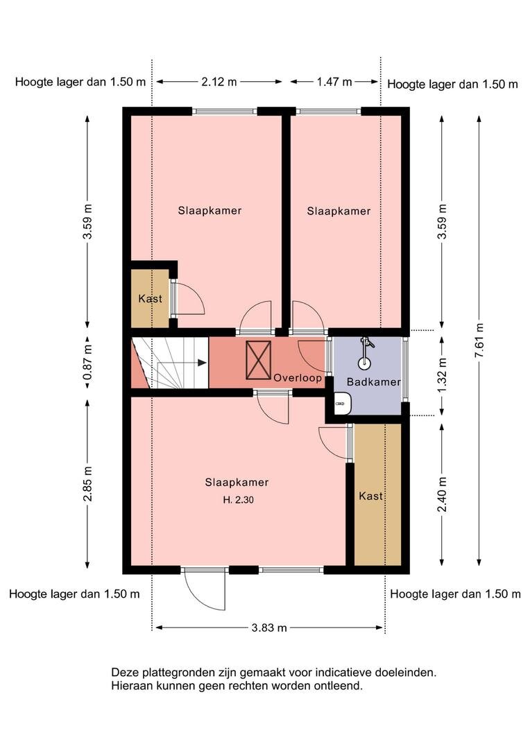
Eerste verdieping: overloop met drie slaapkamers rondom, deels met een vaste kast en een doucheruimte met wastafel.
Daarboven een bergzolder welke met een vlizotrap bereikbaar is.
De garage is vrijstaand, gemetseld en met een kap en bergzolder.
Bijzonderheden:
Tuin op het zuiden en westen op de zon.
Vrijstaande stenen garage van 14 m2
Energielabel D.
Opeinde is een actief streekdorp in de gemeente Smallingerland met circa 1650 inwoners, gelegen op zandgrond vlakbij Drachten. Het dorp wordt gekenmerkt door een lintbebouwing langs een centrale weg en een kanaal dat van noord naar zuid loopt. Het heeft een open karakter, goede basisvoorzieningen, en het heeft een sterke binding met de natuur door de nabijheid van de Leijen.
Het dorp beschikt over twee basisscholen en een peuterspeelzaal. Voor de dagelijkse boodschappen zijn er lokale middenstanders, waaronder een bakker, slager, bloemenzaak, kapsalon, snackbar en een restaurant. Verder heeft het dorp een eigen sportpark, een gymnastieklokaal en een actieve watersportvereniging.
Bereikbaarheid:
De ligging is ideaal, het dorp ligt dicht bij de snelwegen N61 en de A7 richting Groningen Leeuwarden, Heerenveen en Oosterwolde. Drachten is om de hoek en daardoor zijn veel voorzieningen snel bereikbaar.
Alle informatie is te vinden op noorderlichtmakelaars.nl/aanbod/
Wilt u eerst een preview van dit object? Dat kan! Zowel op Funda als op onze eigen website staat naast gewone en 360º foto’s ook een video.
In de koopovereenkomst zal de ouderdomsclausule worden opgenomen.
Tot slot:
Deze presentatie is met zorg samengesteld. Desondanks kunnen aan deze presentatie geen rechten worden ontleend en aanvaardt de makelaar of zijn opdrachtgever geen enkele aansprakelijkheid voor enige onvolledigheid of onjuistheid van de in deze presentatie verstrekte informatie. Mocht deze presentatie of andere verstrekte informatie vragen oproepen, dan nodigen wij je van harte uit deze onder onze aandacht te brengen.
De indeling is als volgt:
Begane grond: Entree, hal, trapopgang, L vormige woonkamer met ramen en licht rondom, Open keuken met een eenvoudige keukenunit. Deur naar de ruime slaapkamer met een doorloop naar de badkamer met douche en toilet.
Vanuit de keuken een deur naar de bijkeuken met hier de aansluitingen voor het witgoed en een deur naar buiten.
Eerste verdieping: overloop met drie slaapkamers rondom, deels met een vaste kast en een doucheruimte met wastafel.
Daarboven een bergzolder welke met een vlizotrap bereikbaar is.
De garage is vrijstaand, gemetseld en met een kap en bergzolder.
Bijzonderheden:
Tuin op het zuiden en westen op de zon.
Vrijstaande stenen garage van 14 m2
Energielabel D.
Opeinde is een actief streekdorp in de gemeente Smallingerland met circa 1650 inwoners, gelegen op zandgrond vlakbij Drachten. Het dorp wordt gekenmerkt door een lintbebouwing langs een centrale weg en een kanaal dat van noord naar zuid loopt. Het heeft een open karakter, goede basisvoorzieningen, en het heeft een sterke binding met de natuur door de nabijheid van de Leijen.
Het dorp beschikt over twee basisscholen en een peuterspeelzaal. Voor de dagelijkse boodschappen zijn er lokale middenstanders, waaronder een bakker, slager, bloemenzaak, kapsalon, snackbar en een restaurant. Verder heeft het dorp een eigen sportpark, een gymnastieklokaal en een actieve watersportvereniging.
Bereikbaarheid:
De ligging is ideaal, het dorp ligt dicht bij de snelwegen N61 en de A7 richting Groningen Leeuwarden, Heerenveen en Oosterwolde. Drachten is om de hoek en daardoor zijn veel voorzieningen snel bereikbaar.
Alle informatie is te vinden op noorderlichtmakelaars.nl/aanbod/
Wilt u eerst een preview van dit object? Dat kan! Zowel op Funda als op onze eigen website staat naast gewone en 360º foto’s ook een video.
In de koopovereenkomst zal de ouderdomsclausule worden opgenomen.
Tot slot:
Deze presentatie is met zorg samengesteld. Desondanks kunnen aan deze presentatie geen rechten worden ontleend en aanvaardt de makelaar of zijn opdrachtgever geen enkele aansprakelijkheid voor enige onvolledigheid of onjuistheid van de in deze presentatie verstrekte informatie. Mocht deze presentatie of andere verstrekte informatie vragen oproepen, dan nodigen wij je van harte uit deze onder onze aandacht te brengen.
Specificaties
Over dit object
Overdracht
| Status | beschikbaar |
|---|---|
| Prijs | € 287.000 k.k. |
Bouw
| Bouwjaar | 1965 |
|---|---|
| Bouwvorm | bestaande bouw |
| Type Object | Woonhuis |
| Hoofdfunctie | Woonruimte |
Indeling
| Woonoppervlakte | 98 m² |
|---|---|
| Perceeloppervlakte | 260 m² |
| Woning Inhoud | 358 m³ |
| Kamers | 5 (4 slaapkamers) |
Energie
| Energielabel | D |
|---|
Plan bezichtiging
voor: Middelbuorren 20 a
Noorderlicht Makelaars
| 0512-543210 | |
| 31512543210 | |
| [email protected] |


























































































Refresh to make it work.
Refresh to make it work.










